谷之翼【创业基地】西安最好的生物医药生产研发场地,看这里!来源:发布时间:2017-01-10 10:50
作为生物医药领域的专业孵化器,联创的资源优势独一无二。
小智骄傲的告诉大家,我们的孵化器拥有西北唯一的国家级科技企业加速器,能够为生物医健企业的创新研发、高速成长提供优秀的基础保障,为企业提供更广阔的发展空间。
位 置
西安高新企业加速器二区
位于草堂科技产业基地秦岭大道西段
西安高新技术产业开发区创业园发展中心,是集企业孵化、产业培育、园区建设为一体的专门机构。西安创业园开发建设的国家级科技企业加速器2009年由国家科技部授牌,位于草堂基地秦岭大道西段,规划面积900亩,其中加速器一区2011年投入使用,加速器二区2015年投入使用。截至目前,加速器园区已入驻企业32家,上市企业达13家,筹备上市6家。
加速器是一种以快速成长企业为主要服务对象,通过服务模式创新充分满足企业对于空间、管理、服务、合作等方面个性化需求的新型空间载体和服务网络。是介于企业孵化器和科技园区之间的一种中间业态。是科技园区从外延式扩张进入内涵式扩张的初步尝试。
整个园区抗震设防烈度为7度,屋面防水等级为二级。厂房用电按标准为90W/m2、主要采用荧光灯照明,照度200LX-300LX;电力计量按照楼层及分区用户单独设置,每个厂房的楼梯间、电梯前室的照明负荷及客梯、货梯为公共电力负荷,单独设置配电照明系统及计量;厂房的网络系统在每个分区用户单元预留网络机柜,具体网络及电话插座的位置和导线由入驻企业自行设置。
草堂规划
草堂科技产业基地占地20km²
草堂科技产业基地位于陕西省西安市高新技术产业开发区内,是西安高新区建设世界一流科技园区的重要组成部分。用地范围约20平方公里,以电子信息、先进制造、生物医药产业和环保产业,光伏、新型电子元器件、半导体照明、软件与服务外包及创新型服务业为主进行招商及配套服务,未来将打造成营业收入超过2000亿元、就业人口16万人、常住人口30万人的新兴卫星城。
项目规划
低密度工业园区容积率仅为1.2
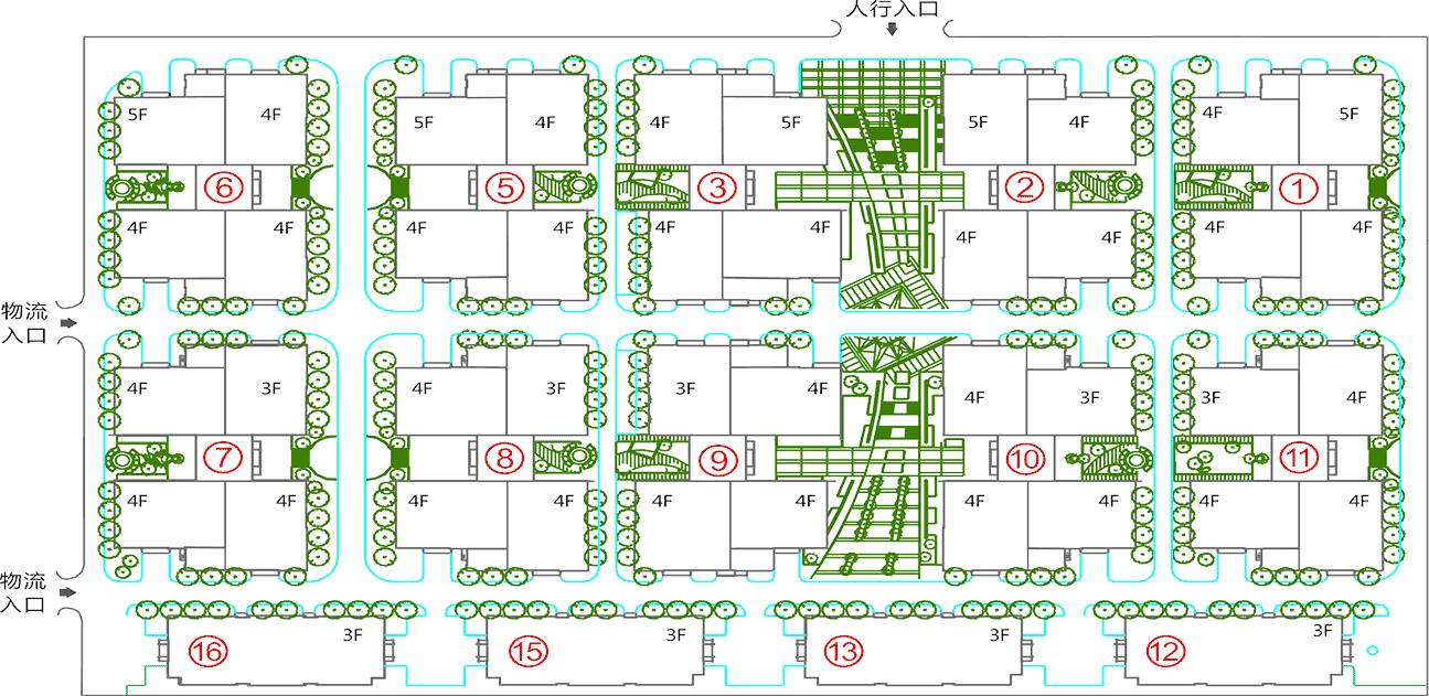
整个园区建筑面积16万㎡,由14栋单体建筑构成,全框架结构,面积由900㎡、1800㎡、2700㎡、3600㎡等组成灵活空间载体,地上三到四层,容积率仅为1.2,拥有全产权50年,付款方式灵活,可办理银行按揭,首付款最低为40%,可满足企业不同需求进行稳定生产。产业定位为战略性新兴产业以及高新区主导产业范围内的产业。
厂房项目图
装修前后对比图
五大优势
科技企业加速器二区建筑总面积16万m²,均为标准厂房,由14栋单体建筑构成,每栋单体建筑为3-4层,容积率仅为1.2,绿色景观带与厂房相映成辉。整个园区规划以企业为核心、景观为载体,是融自然与人文为一体的高科技产业基地。
为园区企业提供高效的投融资服务、创业导师服务、创业培训服务、国际化和会展服务、知识产权服务、项目策划和申报服务、高新区和国家优惠政策咨询及税收筹划服务等,3D打印公共服务平台及相关技术开放服务平台的建立满足企业技术支持。
园区内企业第一时间了解高新区最新优惠政策,如:
《西安高新区管委会关于加快创新驱动发展的若干政策》
《西安高新区管委会关于实施特殊人才跨越计划的若干政策》
《西安高新区管委会关于支持科技企业小巨人发展的若干政策》
《西安高新区管委会关于促进科技与金融结合的若干政策》
《西安高新区管委会关于年度优秀企业评选表彰管理办法》
《西安高新区战略性新兴产业扶持引导基金管理办法》
《西安高新区管委会关于促进经济稳中求进的实施意见》
……
国家级朱雀森林公园、太平森林公园、草堂寺旅游区和万亩优质无公害葡萄基地环绕周围,自然环境十分优越。秦岭国际高尔夫球俱乐部、高科度假大酒店、山水草堂和盛景地产等一批休闲、度假、商住和娱乐设施遍布四周;鸠摩罗什、僧一行,草堂寺、金峰寺、化羊庙、圭峰寺、大圆寺、卧龙寺、橡山古寺、万花山寺等佛教、道教、天主教、基督教等名人典故、历史遗迹存留至今,其中“草堂烟雾”成为“光中八景”之一。
入驻企业部分名单
西安明仁医药保健品有限责任公司 西安蓝极医疗电子科技有限公司 陕西裕泽毅医疗科技有限公司 陕西聚仁谷医疗器械有限公司 陕西脉元生物科技有限公司 西安塞纳生物技术有限公司 西安惠博生物科技有限公司 西安康拓医疗技术有限公司 陕西兴泰生物科技有限责任公司 西安通江生物科技有限责任公司 ......
|























